Room
全16室 附露天温泉・海景房
源泉挂流温泉
在温泉蒸气的彼端,延展开来的是海天一色的东伊豆地平线。
倾听海浪的声音,在月夜里邂逅月光之路。
日本屈指可数的丰沛名汤,将深深地舒缓您的身心。
从简约的客房,到配备桑拿或卡拉OK等充满温泉街风情的客房,共有6种房型。
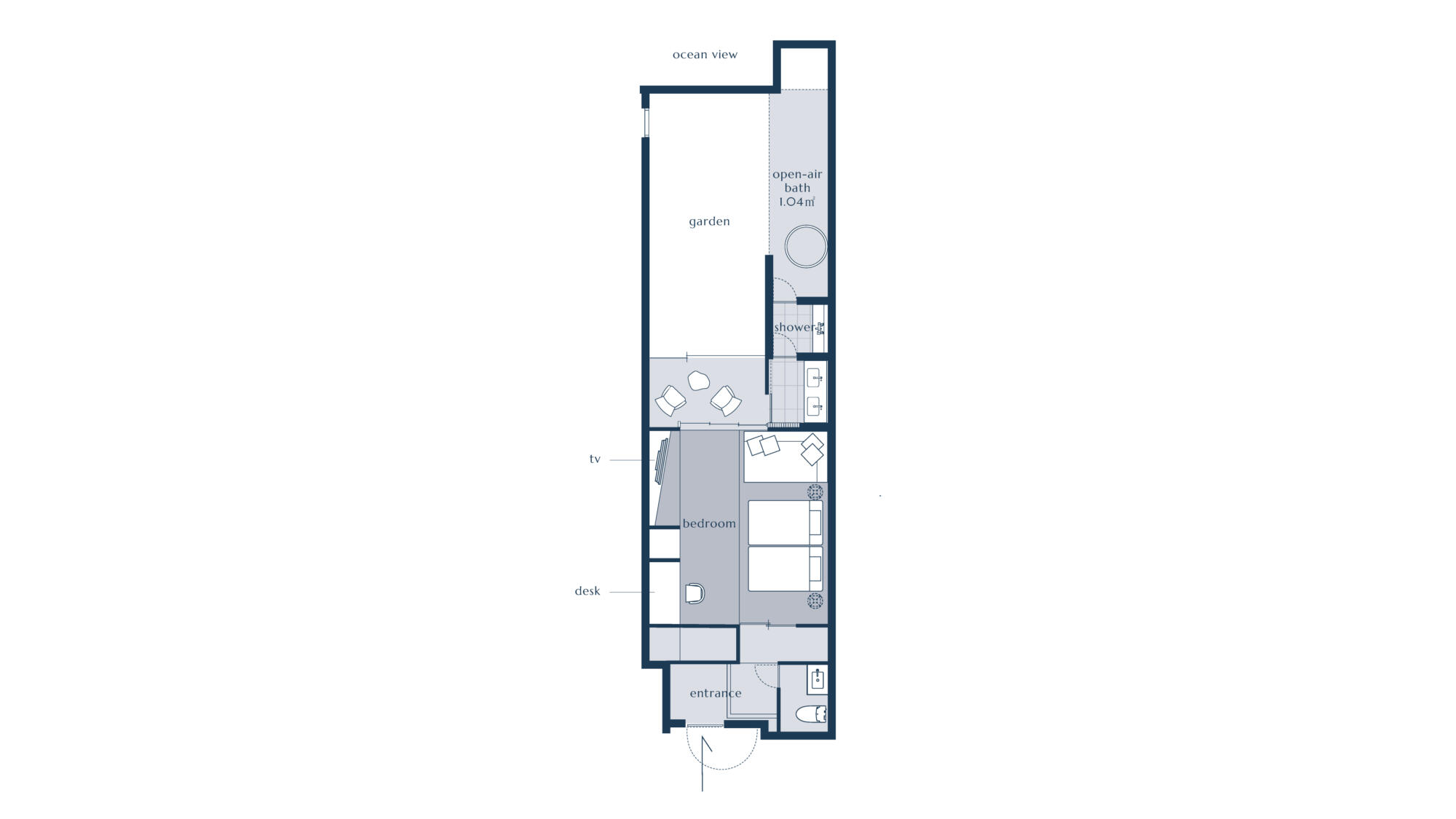
宽敞的客房面积约87〜200平方米,贴近您多样的旅途时光。
【原大浴场套房】源泉海景 附露天温泉・桑拿
约200平方米。这是馆内最宽敞、充满开放感的一间客房。
其中心是保留了昔日大浴场风貌、约20平方米的宽敞专用露天温泉。
此外,还配备了正面眺望相模湾的桑拿。
一边眺望温泉蒸气彼端展开的朝阳或月亮,一边“整顿”身心,这是唯有在此处才能获得的体验。
此外,还有保留了室内浴池遗迹并大胆翻新的舒适客厅等,
虽然是非日常的空间,却能与热川的记忆共度,营造出带有几分怀旧感的氛围。
不仅适合团体热闹地度过,也推荐夫妇或情侣一边眺望大海,一边在私密空间中静静地度过。
面积 190~200㎡
定员 6名
客房数 2间
设备 露天温泉・桑拿
床铺尺寸 W 2400mm × L 2000mm
W 2000mm × L 2000mm
布团 W 1000mm × L 1900mm 2组
露天面积:19㎡露天容积:10.49t
【转角套房】源泉海景 附露天温泉・桑拿
位于顶楼边间约125平方米的客房,除了客房露天温泉、露台之外,还配备了专属的私人桑拿。
在可一览东伊豆大海的露天温泉中,您可以感受海风轻拂肌肤,在波浪声的包围下入浴。
泡完汤后,在桑拿中慢慢温暖身体,接着在外气浴中感受伊豆的大自然,深呼吸调整气息。这是能在海边整顿身心、位于顶楼的特等席。
温泉、桑拿、外气浴,所有这一切都能让您无需顾虑他人,随心所欲地享受。
早晨,从东方海面升起的阳光将美丽地洒入窗内。这是一间能透过温泉与桑拿整顿心灵,享受清爽时光的客房。
面积 125㎡
定员 3名
客房数 1间
设备 露天温泉・桑拿
床铺尺寸 W 2400mm × L 2000mm
有沙发床1台
露天面积:2.5㎡露天容积:1.55t
客房设备
冰箱
电视
电热水壶
扬声器
加湿器
吹风机
租借备品
挂烫机
熨斗组
冰桶
离子夹
充电线
转接插头
婴儿床
尿布桶
红酒冰桶
投影机
投影幕
空气清净机
轮椅
隐形眼镜保养液
指甲刀
洗衣液
毛毯
入浴衣
洗漱用品
温泉毛巾
桑拿帽
牙刷
发梳
化妆棉组
扁梳
刮胡刀
剃须泡沫
洗发水
护发素
沐浴露




































